2025年10月2日 15時58分 更新
次回更新予定日:2025年10月3日
福島産業 株式会社
☆○o。:*桃川小校区域にある新築・中古住宅物件一覧*:..。o○☆
お急ぎの方はこちらまでお電話ください
☎027-251-0505
物件番号
写真画像
所在地 価格 土地面積
建物面積
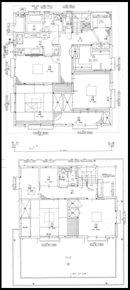
間取
構造
築年月
引渡時期
詳細 画像
18760
 
前橋市田口町 1,580万円 1462.56m2
291.6m2
 
鉄骨造1階建
S57/03
相談
御成約頂きました。  
入荷後2週間以内19820
前橋市関根町1丁目 1,995万円 250.76m2
157.18m2
4SDK
軽量鉄骨造2階建
H07/12
相談
19673
前橋市青柳町 2,180万円 198.06m2
94.77m2
4LDK
木造2階建
R07/08
新築
即時
19620
前橋市青柳町 2,590万円 215.77m2
108.47m2
4LDK
木造2階建
R07/08
新築
即時
19642
前橋市青柳町 2,790万円 248.71m2
83.14m2
3LDK
木造2階建
R07/08
新築
即時
19643
 
前橋市青柳町 2,790万円 277.63m2
122.55m2
4LDK
木造2階建
R07/08
新築
即時
御成約頂きました。